WEBオーダーサービス
WEB order plan
WEBシートに要望を記入するだけで
間取図から外観パースまで
ZESTの設計士があなたの理想のお家を
オーダー設計するサービスです。
私たちZESTは「インテリアショップとつくる家」をテーマに、
熊本・岡山で家づくりをはじめ20年以上経ちます。
今では経験と実績も増え、Instagramフォロワー11万人を超えるまでに成長し
福岡地区の施工事例も年々増えている状況です。
今回、久留米オフィスOPENで福岡・佐賀エリアの皆さまにも
オーダーメイドの家づくり気軽に体感していただけるよう
WEBによる無料オーダープラン作成サービス
をはじめました。
建築予定地がまだお決まりでない方でもご利用可能です。
仮想の土地を設定し、その上で理想のお家プランを無料にてご提案いたします。
そのため、訪問やお電話、郵送物による営業活動などを許可なく行うことは一切ございません。
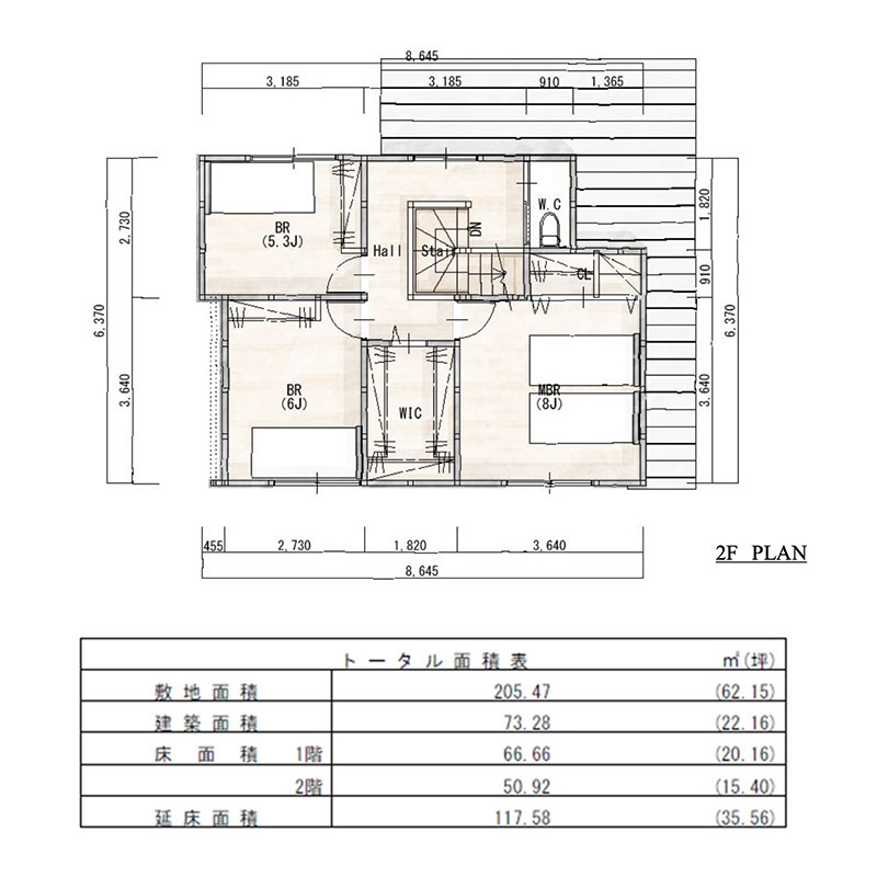
オーダープランサンプル
Order Plan Sample右にスワイプしてご覧ください。
整理するキッカケになります。
次の内容が思い当たる方は
ぜひオーダープランサービスをご利用ください。
- まだ先だが興味はある。
- まだイメージが漠然としていて、相談する段階ではないと思っている。
- 以前プランを提案してもらったけれど、しっくりこなかった。
- 土地がまだ決まっておらず、計画が進まない。
- どのくらいの費用が必要なのか、見当がつかない。
- 家族の意見がまとまらず、話し合いが止まっている。
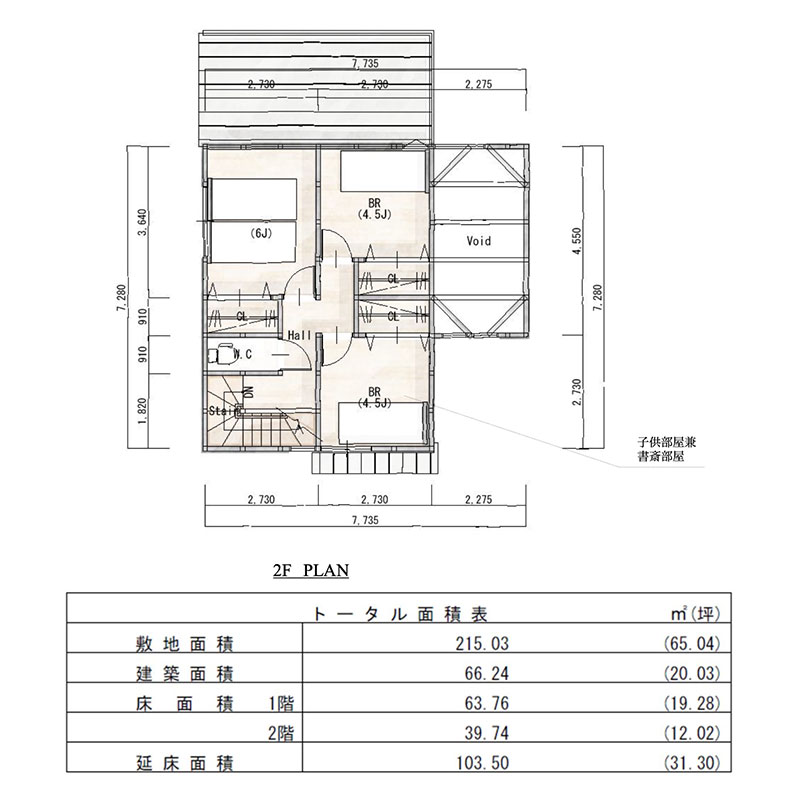
オーダープランサンプル
Order Plan Sample右にスワイプしてご覧ください。
無料オーダープラン作成の流れ
Creation Flow- 1. お申し込み まずは申し込みシートに記入のうえ送信で受付完了です。
-
2.
ご希望・ご要望のヒアリング
ご入力いただいたメールアドレスにカンタンなヒアリングシートが届きます。ご要望やこだわりをテキストでご記入のうえ返送してください。
※写真や参考資料があれば添付をお願いします。 - 3. 内容確認 ヒアリングシートの内容に不明点や確認事項がある場合、担当者よりおたずねメールがとどきます。わかる範囲で応答お願いします。
- 4. 納期・日程のお知らせ 最終確認後、図面作業に入る旨と納期予定をメールでお知らせします。
- 5. 納品 オーダープランを送らせていただきます。当社の著作権は主張しません。参考資料としてご自由にご利用ください。ご感想を頂ければ幸いです。
WEBオーダープラン作成サービスのご利用にあたり、以下の点にご留意ください。
- このサービスはご家族様につき1度のご利用とさせていただきます。
- 作成プランの変更や詳細なご相談をご希望の場合は、ゼストオフィス、モデルハウスでの無料相談会またはモデルハウス見学にお申し込みください。
- 本サービスでは、現地での確認(現況調査)は行いません。場所の確認は主にGoogleマップで行うため、周辺環境(眺望など)や近隣状況の最新の変化に対応できていない場合がございます。
- サービスプラン作成時点では、詳細な法令調査等を行いません。そのため、作成したプランが実際の法令制限により建築できない場合や、現況と異なる情報が含まれる可能性がございます。詳細な調査をご希望の場合は、オフィスでの無料相談会をご利用ください。
-
以下のいずれかに該当される方のご利用はお断りしております。
- 家づくりの予定がない方や、諸事情で計画不可能な場合
- 当社の施工エリア外で検討されている方
- 他社で既に建築請負契約を締結されている方
- 同業者および営業・その他業務目的でのご利用
- 現実と著しく逸脱した要望には対応いたしかねます。より詳細かつ具体的にご要望をプランに反映させたい方は、オフィスでの無料相談会をご利用いただくことをお勧めいたします。
- 本サービスは、毎月先着3組様限定での対応とさせていただきます。定員に達した場合は、翌月の対応となりますのでご了承ください。
- 完成した図面は当社のHPやSNSツール実績として自社利用させていただく場合もございます。
- 本サービスは新築木造以外の建物及び特殊構造(3階建含む)には対応していません。リノベーションや非住宅その他の希望の場合、オフィスでの無料相談会をご利用ください。
建築プロデューサー古田 尚久
佐賀福岡エリアでも多く家づくりをお手伝いしており現在の進行中の現場もありますので完成時にはご案内も可能です!
プラン作成では頂く情報が多いほど希望に近いご提案ができます。建売や規格住宅では実現できないあなただけの理想をZEST自慢の建築士達がカタチにするオーダープラン。今すぐの方もまだ先の方もOK!この機会に是非おためしください。
ゼスト久留米オフィス情報
ZEST Kurume Office無料プランお申し込みシート
Reservation Formお申込みはカンタンです。 シートに記入して送信するだけ! ZESTからヒアリングシートが届きます。
















































