土地セットプラン

Land & Home Package

熊本市近郊の厳選優良土地情報を集め、イメージが付きやすいようにゼストの規格住宅をプランしました。
ご予算生活スタイルに合わせた自由設計も可能ですお気軽にお問合せください。

熊本市東区花立6丁目 土地相談会

この物件のご案内は終了しました

人気の桜木東小・桜木中学校校区に希少な売地が登場しました!!

 

人気の桜木東小学校まで約500m・桜木中学校まで約1,000mと通学も安心。

バス停やスーパー、郵便局、銀行、病院など生活に欠かせない施設が徒歩圏内に揃っており、利便性◎。

日当たりも良く、程よい広さでマイホームのご提案が可能な土地です!

所  在  地/熊本市東区花立6丁目

販売価格/1,300万円

土地面積/165.3㎡(50.0坪)

 

ご予算や生活スタイルに合わせ自由設計も可能です!

また他にもプランを多数ご用意しておりますので、お早めにお問合せください。

 

プランのご紹介

  • ■プランA

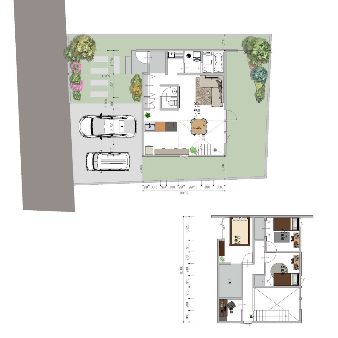
    ・3人~4人ご家族におすすめの間取り
    ・南向きのLDKで日当たり抜群
    ・2階のキッズスペースは書斎や趣味の部屋など、ご自由に変更可能

  • ■プランB

    ・南向きの吹き抜けが開放感のあるLDK
    ・寝室にウォークインクローゼットを完備
    ・シンプルで洗練された外観

  • 【土地概要】
     土  地/
     価格1,300万円 土地面積165.3㎡(50.0坪)
     用途地域/第1種低層住居専用地域
     建ぺい率/40% 容積率/80%
     道  路/北西側公道幅員 約4m
     設  備/公共上下水道・都市ガス・九州電力
     地  目/宅地(現況:駐車場)
     販売代理
    【周辺施設】
     学  区/
     桜木東小500m(徒歩7分)
     桜木中 1000m(徒歩14分)
     交  通/
     北花立・県畜産会館前バス停100m(徒歩2分)
     買  物/ハローデイ桜の森店600m(9分)

今回ご紹介したのは、3LDKの2階建てプラン。
「ほかに土地情報あったら教えてほしい」
「もっとほかのプランを見てみたい!」
「自分たちの予算で建てられるのか。」
「私たちのプランを書いてほしい。」などなど・・・

少しでもご興味がありましたらぜひお問い合わせください。

この物件のご案内は終了しました